About this property
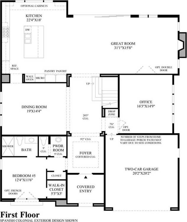
NEW CONSTRUCTION with estimated delivery in October 2018. Popular MANOR LA VERDE home. Home site has generous level yard & slope on cul-de-sac street that opens to nature preserve. Grand foyer opens to separate dining room & office. Expansive great room & kitchen open through multi-panel stacking door to luxury outdoor living space for entertaining. Secondary bedroom & bath down. Master Retreat, 3 bedrooms with en-suite baths, laundry, & loft area perfect for family upstairs. Award-winning Toll Brothers is now offering their hottest luxury master planned community in coastal Carlsbad. Located just 3 miles from the beach, Toll Brothers at Robertson Ranch features 19 home designs, 4 neighborhoods (2 gated), 5 parks, walking trails, a private community center with BBQ area, outdoor fireplace, cabanas and… Read Moreresort style pool and spa. Each home is beautifully appointed offering Kitchen Aid stainless steel appliances, granite in the kitchen, large center island, open spacious floor plans and quality throughout. Energy efficient tankless water heaters as well as central air and heat are included.. Neighborhoods: Robertson Ranch Equipment: Fire Sprinklers,Garage Door Opener, Range/Oven Other Fees: 0 Sewer: Sewer Connected Topography: LL,SSLPProperty listed by Toll Brothers Real Estate, Inc, Rachel Erwin 714-347-1300Read Less
sold
$2,836,800
Bedrooms
5
Bathrooms
6
Square Ft.
4,427
Acres
7,800 sqft
Floors
2
Property Type
Single Family Residence
Full Baths
6
Appliances & Equipment
CounterTop,DoubleOven,Dishwasher,EnergyStarQualifiedAppliances,Disposal,GasOven,GasRange,Microwave,RangeHood,SelfCleaningOven
Building
Built in 2018,Living area: 4427.0,2 stories,Levels: Two,Construction Materials: StoneVeneer, Stucco
Community
Pool
Year Built
2018
Cooling
CentralAir,EnergyStarQualifiedEquipment,HighEfficiency
Heating
ForcedAir,Fireplaces,NaturalGas
Home Owner Association
Association Fee: $343,Fee Frequency: Monthly
Interior Features
SeparateFormalDiningRoom,BedroomOnMainLevel,EntranceFoyer,Loft,WalkInPantry,WalkInClosets
Laundry
ElectricDryerHookup,GasDryerHookup,LaundryRoom
Parking
2 open parking spaces,4 total parking spaces,Driveway
Pool
Community
Taxes
Parcel Number: 2081945400
Interested in
4736 Kentner Court
Rachel Erwin
BROKER / REALTOR®

Please Select Date
Please Select Type
Confirm your time
Fill in your details and we will contact you to confirm a time.
Contact Form
Welcome to our open house!
We encourage you to take a few seconds to fill out your information so we can send you exclusive updates for this listing!





































